
Hirsilato R-S Vino-Rakoseinä 6,3m2
Tuotekoodi: LPG0251093 EAN: 6424110251093Tuotekuvaus
Komea R-S Hirsilato sopii loistavasti varastoksi
Tämä piharakennus on suomalainen ja helppo kasata!
Hirsilato R-S on rakomallinen vino seinäinen 6 m2 piharakennus. Se sopii erinomaisesti varastoksi, puiden säilytykseen, heinille, puutarhavälineille, mönkijälle, moottorikelkalle, puutarhakoneille, polkupyörille sekä kausitavaravarastoksi. Pariovien ansiosta saat isotkin tavarat helposti suojaan pihalatoon. Pihalato toimitetaan puuosatoimituksena tilaamaasi osoitteeseen ja se on helppo kasata mukana tulevilla ohjeilla.
Toimitus ei sisällä vesikattolaudoitusta, vesikatemateriaalia, eikä lattiarakenteita (tilattava erikseen).
Suomalaiset, komeat, kestävät ja kätevät piharakennukset, hirsiladot, pihavarastot, pihaladot ja puuladot pihallesi tai mökille löydät meiltä.
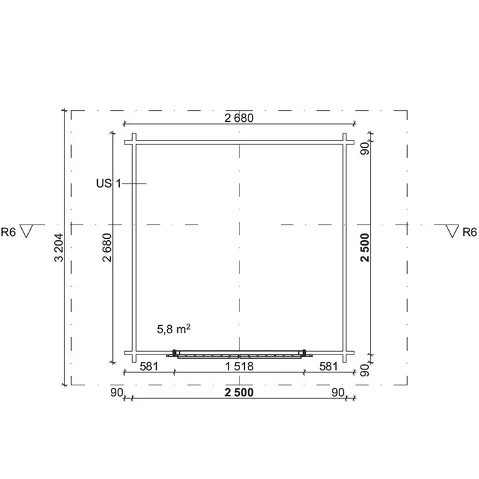
Tuotetiedot
- Rakomalli (tuuletusraot seinissä)
- Suorat päätyseinät ja vinot sivuseinät (42x145mm)
- Pohjan koko: leveys 2500 mm, pituus 2500 mm
- Harjakorkeus 2740 mm
- Sivuseinäkorkeus 1840 mm
- Katon harjapituus 3204 mm (runko)
- Katon lapepituus 2266 mm (runko)
- Katon lapepituus 2291 mm (pelti)
- Perustoimituspakkaus: 1 pkt / n. 700 kg
Toimitukseen sisältyy
- Seinät ja kattokannattajat 42x145 kevythirsi
- Päätyräystäs 42x145
- Sivuräystäät 42x145
- Ovet
- Asennusohje
- Toimenpidelupakuvat
Toimituspaketti ei sisällä
- Vesikattolaudoitusta / vesikatemateriaalia (tilattava erikseen)
- Lattiarakenteita (tilattava erikseen)
- Saat lisättyä lattian ja katteen tilaukseesi ostoskorissa, kun lisäät sinne ensin hirsiladon.
mitat: 120,0 cm (l) x 45,0 cm (k) x 310,0 cm (p)
paino: 723,00 kg
Valmistusmaa: suomi