
Hirsilato R-XL Vino-Rakoseinä 20m2
Tuotekoodi: LPG0251123 EAN: 6424110251123Tuotekuvaus
Komea R-XL Hirsilato sopii loistavasti varastoksi
Tämä piharakennus on suomalainen ja helppo kasata!
Hirsilato RXL on rakomallinen vino seinäinen 20 m2 piharakennus. Se sopii erinomaisesti varastoksi, puiden säilytykseen, heinille, puutarhavälineille, mönkijälle, moottorikelkalle, puutarhakoneille, polkupyörille sekä kausitavaravarastoksi. Kaksien pariovien ansiosta saat isotkin tavarat helposti suojaan pihalatoon. Pihalato toimitetaan puuosatoimituksena tilaamaasi osoitteeseen ja se on helppo kasata mukana tulevilla ohjeilla.
Toimitus ei sisällä vesikattolaudoitusta, vesikatemateriaalia, eikä lattiarakenteita (tilattava erikseen).
Suomalaiset, komeat, kestävät ja kätevät piharakennukset, hirsiladot, pihavarastot, pihaladot ja puuladot pihallesi tai mökille löydät meiltä.
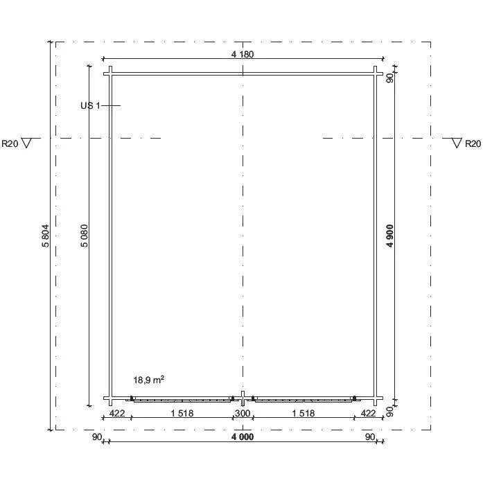
Tuotetiedot
- Rakomalli (tuuletusraot seinissä)
- Suorat päätyseinät ja vinot sivuseinät (42x145mm)
- Pohjan koko: leveys 4000 mm, pituus 4900 mm
- Harjakorkeus 3170 mm
- Sivuseinäkorkeus 1840 mm
- Katon harjapituus 5804 mm (runko)
- Katon lapepituus 3236 mm (runko)
- Katon lapepituus 3261 mm (pelti)
- Perustoimituspakkaus: 1 pkt / n. 1300 kg
Toimitukseen sisältyy
- Seinät ja kattokannattajat 42x145 kevythirsi
- Päätyräystäs 42x145
- Sivuräystäät 42x145
- Ovet
- Asennusohje
- Toimenpidelupakuvat
Toimituspaketti ei sisällä
- Vesikattolaudoitusta / vesikatemateriaalia (tilattava erikseen)
- Lattiarakenteita (tilattava erikseen)
- Saat lisättyä lattian ja katteen tilaukseesi ostoskorissa, kun lisäät sinne ensin hirsiladon.
mitat: 120,0 cm (l) x 55,0 cm (k) x 570,0 cm (p)
paino: 1431,00 kg
Valmistusmaa: suomi