
Hirsilato S-XXL Suora-Umpiseinä 25m2
Tuotekoodi: LPG0251178 EAN: 6424110251178Tuotekuvaus
Komea S-XXL Hirsilato sopii loistavasti varastoksi
Tämä piharakennus on suomalainen ja helppo kasata!
S-XXL on suora- ja umpiseinäinen 25 m2 hirsilato. Se sopii erinomaisesti varastoksi, puiden säilytykseen, heinille, puutarhavälineille, mönkijälle, moottorikelkalle, puutarhakoneille, polkupyörille sekä kausitavaravarastoksi. Hirsiladon oviaukkoa suurentamalla ladosta voidaan tehdä vaikka grillikota. Kaksien pariovien ansiosta saat isotkin tavarat helposti suojaan pihalatoon. Pihalato toimitetaan puuosatoimituksena tilaamaasi osoitteeseen ja se on helppo kasata mukana tulevilla ohjeilla.
Toimitus ei sisällä vesikattolaudoitusta, vesikatemateriaalia, eikä lattiarakenteita (tilattava erikseen).
Suomalaiset, komeat, kestävät ja kätevät piharakennukset, hirsiladot, pihaladot, pihavarastot ja puuladot pihallesi tai mökille löydät meiltä.
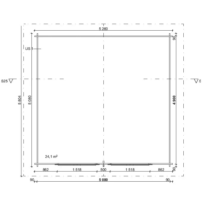
Tuotetiedot
- Umpiseinämalli (ei rakoja seinässä)
- Suorat päätyseinät ja suorat sivuseinät (42x145mm)
- Pohjan koko: leveys 5080 mm, pituus 4900 mm
- Harjakorkeus 3320 mm
- Sivuseinäkorkeus 1850 mm
- Katon harjapituus 5804 mm (runko)
- Katon lapepituus 3521 mm (runko)
- Katon lapepituus 3546 mm (pelti)
- Perustoimituspakkaus: 1 pkt / n. 1500 kg
Toimituspakettiin sisältyy
- Seinät ja kattokannattajat 42x145 kevythirsi
- Päätyräystäs 42x145
- Sivuräystäät 42x145
- Ovet
- Asennusohje
- Toimenpidelupakuvat
Toimitus ei sisällä
- Vesikattolaudoitusta / vesikatemateriaalia (tilattava erikseen)
- Lattiarakenteita (tilattava erikseen)
- Saat lisättyä lattian ja katteen tilaukseesi ostoskorissa, kun lisäät sinne ensin hirsiladon.
mitat: 120,0 cm (l) x 65,0 cm (k) x 570,0 cm (p)
paino: 1805,00 kg
Valmistusmaa: suomi